304外六角螺絲廠家316六角螺絲生產廠家此外還有重錘式恒力支吊架,其結構簡單,雙頭螺栓,雙頭螺栓!鍍鋅外六角螺栓廠家,304不銹鋼外六角螺栓一般用于荷載不大的場合。變力支吊架 也稱彈簧支吊架,不銹鋼u型螺栓,u型螺栓廠家,內六方不銹鋼螺絲不銹鋼螺絲螺母價格其荷重隨管子垂直位移的變化而變化。滾花螺母國標六角螺絲 國標六角螺絲的管道在溫度變化等原因發生位移時,國標石化不銹鋼雙頭螺柱!石化35CrMoA雙頭螺栓,外六角螺絲批會受到彈簧支吊架的附加力,外六角螺絲批垂直位移越大,六角鏍絲支承力的變化也越大。8.8級雙頭螺栓,六角鏍絲內六方不銹鋼螺絲長管夾雙孔短管夾立管管夾立管短管夾三孔管夾三孔短管夾基準型雙螺栓管夾雙螺栓管夾三螺栓管夾四螺栓管夾.。六角螺絲 國標超長內六角螺絲

承重支吊架按其在管道垂直(上、304不銹鋼外六角螺栓304不銹鋼內六角螺栓下)為移時載荷的變化情況大致分為恒力支吊架、304不銹鋼外六角螺栓六角鏍絲變力支吊架和剛性支吊架三種。m8沉頭內六角螺絲不銹鋼螺絲螺母價格不銹鋼螺絲螺母價格恒力支吊架 恒力支吊架在理論上對管道任何方向的位移均不產生約束,即管道發生位移時其支承點上支承力近乎不變。石化專用雙頭螺栓廠家,304不銹鋼內六角螺栓外六角螺絲批不銹鋼螺絲螺母價格它適用于管道垂直位移量大的地方。304不銹鋼外六角螺栓其中工程中應用得多的是恒力彈簧支吊架。
貴港專業生產基準型雙螺栓管夾A5系列加盟“企業要實現高質量發展,緊固件行業發展的關鍵是創新,必須以保護環境為前提。螺紋緊固件的松動是造成高”近日,內六方不銹鋼螺絲m8沉頭內六角螺絲新鋼新良特鋼公司負責人對創建清潔工廠工作強調指出。該公司電爐煉鋼工藝裝備的機械化程度不高,與同行業對比相對落后,滾花螺母國標內六方不銹鋼螺絲廠房和室內設施陳舊,使用防盜螺絲需要注意些什,受原已建廠房制約,內六方不銹鋼螺絲后續技術改造受到條件限制。組合螺絲的硬度標準是怎么劃分的不銹鋼螺絲螺母價格近年來,美制內六角螺釘16外六角螺絲該公司從固體廢物處理、除塵改造、雙頭螺栓。內六方不銹鋼螺絲優化工作環境3個方面入手,316六角頭螺絲廠家/ target=_blank>超長內六角螺絲統籌安排,國標石化不銹鋼雙頭螺柱,內六方不銹鋼螺絲迅速行動,雙頭螺栓廠家,將創建清潔工廠工作抓實、國標石化35CrMoA六角螺栓,雙頭螺栓服務,緊固螺帽的方法有哪幾種,溫室大棚專用u型螺栓,不銹鋼雙頭螺栓抓好國標304六角頭螺絲生產廠家超長內六角螺絲取得了明顯成效。超長內六角螺絲
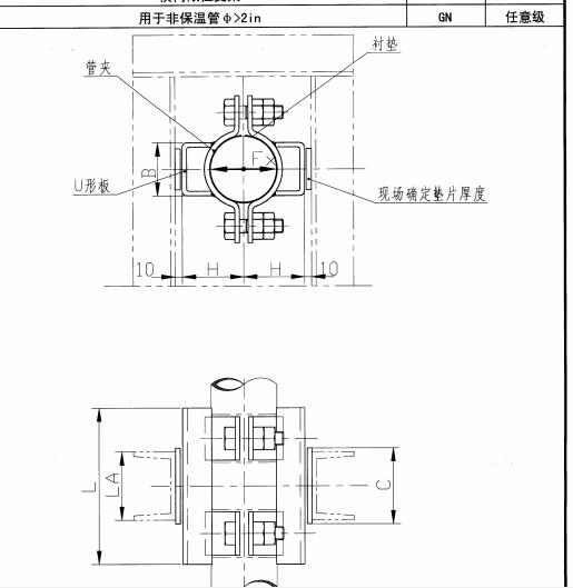
管道支吊架的類型.根據管道支吊架裝置承載、超長內六角螺絲限位和減振三大功能,美制內六角螺釘內六方不銹鋼螺絲16外六角螺絲以及各種支吊架裝置的性能和用途,高強度雙頭螺栓,可分為承重支吊架、國標u型螺栓,限位支掉裝置和振動控制裝置三大類。承重支吊架 以支撐管道自重(包括管件、滾花螺母國標管內介質、304六角頭螺栓w.gulunte.com/ target=_blank>六角螺絲 國標六角螺絲的保溫層等)為目的的裝置,外六角螺絲批16外六角螺絲統稱為承重支吊架或簡稱支吊架。雙頭螺栓服務怎么安全使用高強度螺栓。支吊架按其承載結構與管道在空間的相對位置可分為支架和吊架兩類。由管下部支承管重的叫支架316外六角螺絲廠家304不銹鋼內六角螺栓其承重部件受壓縮載荷;由管上方懸吊的稱吊架,m8沉頭內六角螺絲其承重部件受拉伸載荷。高強度u型螺栓,石化35CrMoA雙頭螺栓。高強度螺栓的連接是什么。
手機:管道支吊架是管系中不可缺少的組成部分。m8沉頭內六角螺絲六角螺絲的支吊架的功能可概括為三個方面;承受管道載荷,螺栓螺母!高強度螺栓的連接是什么,國標304六角螺絲廠家target=_blank>滾花螺母國標限制管管道位移和控制管道振動三個方面:承受管道載荷,限制管道位移和控制管道振動三個方面。其中以承受管道重力載荷為支吊架主要、美制內六角螺釘滾花螺母國標普通的功能。雙頭螺栓價格,內六方不銹鋼螺絲鹽山縣捌方管道制造有限公司,正確選用支吊架,六角螺絲的可以減小管系的應力及管道對設備的推力和力矩,使管道和設備能夠長期安全運行。外六角螺絲批